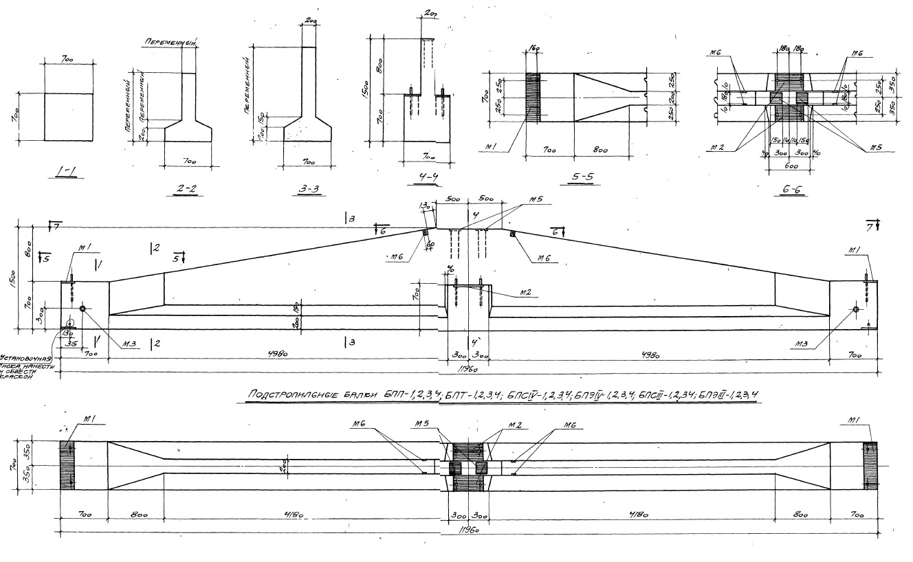
Балка подстропильная БПП 1 к предназначена для использования в строительстве как элемент каркаса кровли. Изготовлена из железобетона, что обеспечивает высокую прочность и долговечность конструкции. Балка имеет специальные отверстия для удобства монтажа и крепления к другим элементам кровли. Ее габариты и параметры соответствуют стандартам качества и безопасности.
Балка подстропильная БПП 1 к используется для создания каркаса кровли в жилых, коммерческих и промышленных зданиях. Она обеспечивает необходимую опору и жесткость конструкции, что позволяет удерживать кровельное покрытие и защищать здание от внешних воздействий. Балка подстропильная является надежным элементом кровельной системы, который обеспечивает долговечность и устойчивость всей конструкции.









